Doza aer conditionat Wallbox, 42 cm
Doza aer conditionat Wallbox
Descriere
Doza aer conditionat Wallbox
Doza aer condiționat Wallbox este o cutie special amenajată pentru scurgerea condensului aparatelor de aer condiționat cu ieșire dublă, reversibilă și reglabilă.
Cutia este echipată cu un capac de protecție din carton și prin ea pot trece 4 bare transversale care ajută ca aceasta să nu se deformeze din cauza zidăriei și se poate evita totodată acumularea de praf de pe șantier.
Avantaje:
* Rolul acestei cutii este de a oferi protecție traseului frigorific și de a colecta condensul.
* Wallbox Bonomini are avantajul reversibilității dreapta sau stânga prin simpla reglare a pantei.
* Această cutie se montează – încastrat în perete, ceea ce oferă totodată și un design cât mai plăcut.
* Wallbox Bonomini are în componența sa o tavă dublă de colectare a condensului, dar și izolație termică.
* Datorită acestei cutii putem evita formarea petelor umede ce pot apărea pe peretele unde este poziționat sistemul de aer condiționat.
* Instalarea traseului frigorific înainte de tencuit și zugrăvit constituie un avantaj.
Instrucțiuni:
* Eliberați cele două cârlige care fixează bazinul și înclinați bazinul balansoar în direcția pe care o preferați.
* Puneți Wallbox-ul în cavitatea peretelui, apoi fixați-l la cumpănă. În jurul dozei trebuie lăsată o distanță de 1 cm față de perete.
* Aplicați pe doză capacul de protecție din carton și fixati-l cu cele patru traverse din plastic. Acestea împiedică orice deplasare a dozei.
* Fixează doza și acoperă cu ipsos spațiile din jurul dozei.
* Îndepărtează capacul de carton și înlocuiește-l cu capacul alb din plastic. Acum doza este gata de a fi conectată la sistemul de aer condiționat.
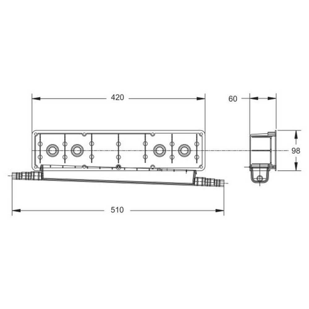
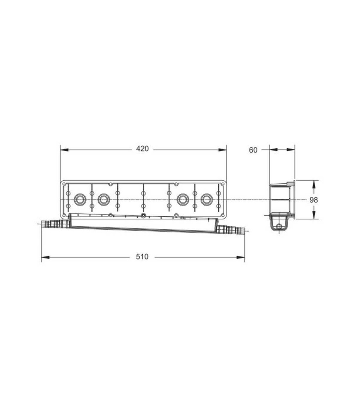
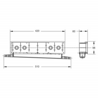
Specificații tehnice:
| Tip produs | doză aer condiționat |
| Tip montaj | încastrat în perete |
| Material | PS + PE |
| Destinată pentru AC | 7000- 24000 BTU |
| Dimensiune(L x l x h) | 42 /51x 6 x 9.8 cm |
| Culoare | alb/verde |






























Comentarii
Lasă o recenzie